At Enriquez Home Improvement, we believe your home should reflect your style, comfort, and the way you truly live. Our skilled team delivers high‑quality renovation and remodeling services tailored to your specific needs and vision. Whether you’re upgrading a kitchen or bathroom, refreshing a single room, or transforming your entire home, we approach every project with precision, care, and craftsmanship you can trust.
We take pride in our attention to detail and our commitment to exceptional customer service. Every project is completed to the highest standards, ensuring results that are beautiful, functional, and built to last. Let us bring your ideas to life and create a space you’ll enjoy for years to come.
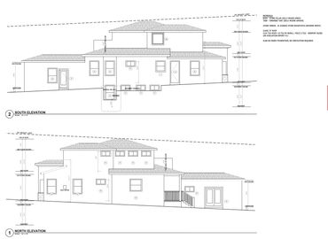
GULATI & KANWAR RESIDENCE
New home Sycamore Rd.
Location: PLEASANTON, CA
TOTAL PROJECT ( RESI DENCE )
4 ,814 SF HABI TABLE
939 SF TOTAL GARAGE AREA
1,015 SF PORCHES AREA



Update status of project. 1/2026
MANDADI RESIDENCE
New home at Ellsworth Street
Location: FREMONT CA.
TOTAL PROJECT ( RESI DENCE A + B + ADU)
4 ,2 1 6 SQUARE FEET HABI TABLE
5 ,4 2 5 SQUARE FEET TOTAL
OVERALL TOTAL PROJECT SI ZE: 5735 SQUARE FEET



Update status of project. 1/2026
E.H.I& C is excited to be part of the recovery efforts of the Sonoma county by helping re-built a new replacement home.
Location: Napa County
House: Approx. 2,000 Sq Ft.
Garage: Approx. 500 Sq Ft.
Covered Porch: Approx. 200 Sq. Ft
Covered Patio: approx. 170 Sq. Ft









CUSTOM Home in the beautiful community of Willow Glen in San Jose Ca.
Details:
FLOOR AREA CALCS. (SQ. FT.)
MAIN FLOOR RESIDENCE: 1,857
UPPER FLOOR RESIDENCE 1,726
TOTAL RESIDENCE FLOOR AREA: 3,583
2ND DWELLING UNIT:
LOWER FLOOR: 390
UPPER FLOOR: 300
TOTAL FLOOR AREA: 690
ENCLOSED PORCH AREA: 85
TOTAL FLOOR AREA: 4,358
ATTACHED 4-CAR GARAGE: 890
TOTAL AREA: 5,248



























Copyright © 2018 Enriquez Home Improvement Corp. - All Rights Reserved.
Lic # 911350
COMMERCIAL & RESIDENTIAL BUILDING CONTRACTOR LIC